REQUEST A TOUR If you would like to see this home without being there in person, select the "Virtual Tour" option and your agent will contact you to discuss available opportunities.
In-PersonVirtual Tour

$ 1,800,000
Est. payment /mo
Active
1452 Benton Lakewood, CO 80214
0.28 Acres Lot
UPDATED:
Key Details
Property Type Vacant Land
Sub Type Mixed Use
Listing Status Active
Purchase Type For Sale
Subdivision West Colfax-Edgewater-Sloan'S
MLS Listing ID IRE3315981
HOA Y/N No
Annual Tax Amount $2,024
Tax Year 2024
Lot Size 0.280 Acres
Acres 0.28
Property Sub-Type Mixed Use
Source ires
Property Description
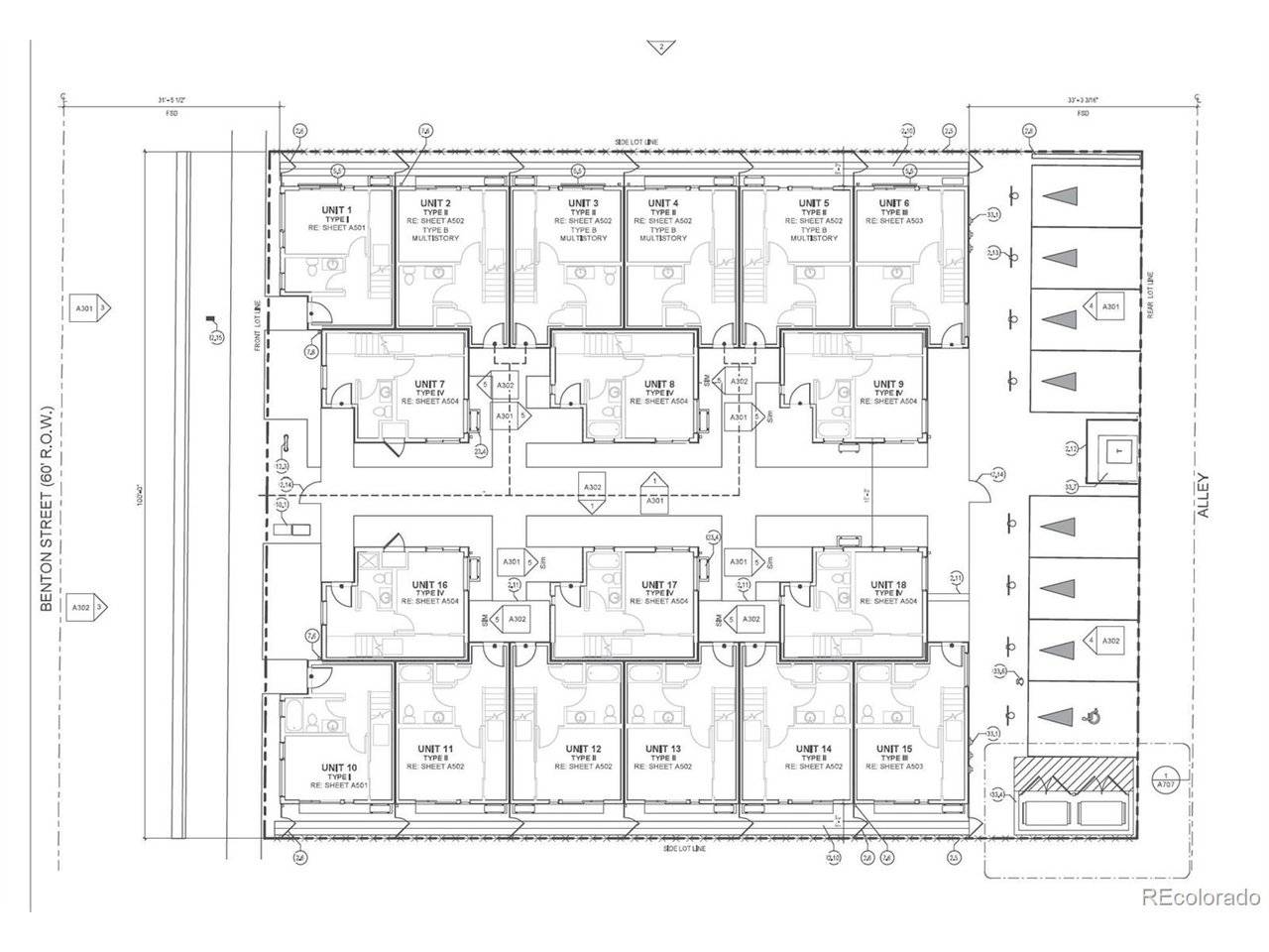
Take advantage of FULLY SHOVEL READY BUILDING PLANS with PERMITS READY TO BE PICKED UP. These are EIGHTEEN well-designed townhomes. New 3-story townhomes, multiple floor plans, all units include 2 bedrooms and 2 bathrooms, tall ceilings, amazing curb appeal, and the ability to fence small yards. Get them built and ready just in time for summer 2026. All the "dirty" work is already complete. START IMMEDIATELY. 1452 Benton Street was designed to accommodate the flexible living habits that modern city dwellers face. The stratified bedroom layout ensures privacy when needed. The living room offers a place for residents to create a community space. We have also designed outdoor living spaces to accommodate so owners/tenants can take advantage of Colorado's great weather. These uniquely designed living quarters suit both newly formed families, roommates, and live-work situations, providing for a broad pool of demand from which to pull.
Location
State CO
County Jefferson
Community West Colfax-Edgewater-Sloan'S
Area Metro Denver
Zoning RES
Exterior
Utilities Available Electricity Available, Cable Available
View Y/N No
Garage No
Building
Lot Description Level, Paved
Sewer Public Sewer
Water City
New Construction false
Schools
High Schools Jefferson Dist R-1
School District Jefferson Dist R-1
Others
Acceptable Financing Cash
Listing Terms Cash

Listed by The Highland Team

GET MORE INFORMATION
QUICK SEARCH


